KOLPING Katolikus Szakképző Iskola átalakítás és bővítés - Szekszárd 7100 Szekszárd, Pázmány Péter tér 4.
FELELŐS TERVEZŐ:Sebestyén Péter
Tervezői munkatársak: Kádár Mihály, Kiss Balázs, Kiss Szabolcs
Munkatársak: Barcsai Ági, Faltusz Csaba, Holics Tamás, Magosi Edina, Rajnai Zsuzsanna
TERVEZÉS ÉVE 2008-2009
GENERÁLTERVEZŐ:Incorso építész- és építőműhely Bt.
SZAKÁGI TERVEZŐK: Dravecz Gábor (épületgépészet) Papp Ferenc (tartószerkezet) Lipinka Zsolt (tűzvédelem)
Előzmények:
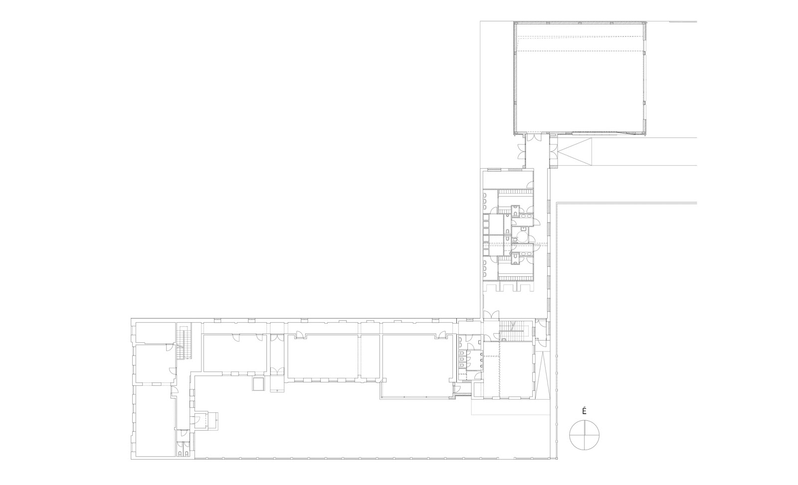
A tervezési terület Szekszárd belvárosához közel helyezkedik el a Pázmány téren, közvetlenül a templom szomszédságában. A telek három oldalról utcával határos. Az iskolai részen a beépítés koncepciótlan volt, nem volt sportudvar, a bejárat alig volt fellelhető. A több ütemben épült épület kusza, közlekedési rendszere, megközelítése nem lett alaposan átgondolva. Az iskola egyetlen fejlesztési lehetősége az volt, ha a második variációban taglalt telekdarabot megvásárolja és minimális mértékű sportudvart létesít magának. Az épület korának megfelelő állapotban van, karbantartása folyamatosan zajlik.
Tervezési koncepció:
A feladat egy többfunkciós nagyterem kialakítása volt. A teremben az iskolai tornaszoba funkció kerülte elhelyezésre, mely az iskola nagyobb rendezvényeinek ad majd helyet.
A bővítés alapterülete egy nagyobb, a többfunkciós használatot kiszolgáló négyzetes alapterületű térből áll. A nyeregtetős épülettömeg üvegezett kisebb nyaktaggal csatlakozik a meglévő iskolaépülethez. A nyaktag másfél emelet magas tömege nagyvonalú bejáratot biztosít a hátsó kapu felől érkezők számára. A hagyományos épülettömeg tetőfelülete a tetősíkból kiálló bevilágítófelületekkel szabdalt. Illeszkedve a meglévő épület tetőtéri kialakításához, az íves bevilágítósort az új épületrész tetején fellazítottuk, maivá tettük.
| építés közben a bevilágítók |










Nincsenek megjegyzések:
Megjegyzés küldése